PROJET VRD & TERRASSEMENTS – Accès, Paysage & Réseaux
Projet VRD complet portant l’aménagement d’un institut médicoéducatif comprenant les accès VL/PL, l’organisation paysagère, les cheminements piétons, la gestion des eaux pluviales, les réseaux secs, et la modélisation altimétrique (MNT) de la plateforme.
L’étude inclut les terrassements, la définition des structures de voirie, les profils en long et les plans d’exécution en phase AVP.
Contexte & Enjeux
Projet d’aménagement d’un institut médicoéducatif avec les accès VL/PL, les stationnements, l’organisation paysagère, les cheminements piétons, les réseaux humides et secs, ainsi que les terrassements et structures des revêtements.
Données d’entrée :
- Plan topographique géoréférencé détaillé en format DWG
- Plan masse architecte du projet à recaler car sans géoréférencement
Outils de travail :
- Suite bureautique Microsoft 365
- Adobe Acrobat
- Autodesk Autocad Map 3D
- Autodesk Covadis
Réalisations :
- Génération d’un modèle numérique de terrain (MNT) à partir du plan topographique avec Autocad et Covadis
- Agglomération des jeux de données topographe et architecte sur un seul et même plan
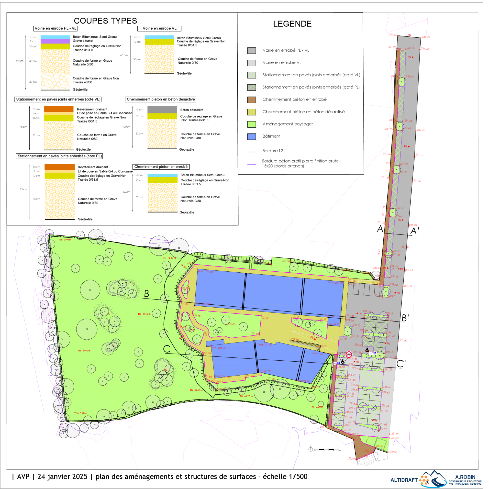
- Conception sur Covadis des plateformes de terrassements en fonctions des données de structures relatives à chaque revêtement prévu
- Modélisation Covadis pour extraction des volumes de terrassements et matériaux d’apports (graves, sables …) et génération du plan d’arase de terrassement
- Dessin 2D des réseaux secs et humides
- Edition des profils en long
Livrables : Projet en phase AVP
- Plan de l’arase de terrassement avec hauteur des déblais – remblais
- Plan des revêtements et structures avec coupes type des structures d’aménagements
- Profils en long
- Plans des réseaux humides et des réseaux secs
- Fichier Microsoft Excel des volumes de déblais, remblais, matériaux d’apports (extraits avec Covadis), linéaires de canalisations, câbles et gaines
Les données d’identification des lieux ont été supprimées afin de garantir la confidentialité.





